Пожаротушение в банях сухого жара

В. И. Воронова, главный инженер проекта в компании ООО «НТД Реставрация»

Введение

Бани сухого жара стали частью досуга современного человека. Ни один крупный фитнес-клуб не может обойтись без парильной. Баня сухого жара — это отдельное помещение в составе спортивного комплекса с водными процедурами для спорта и оздоровления, предназначенное для принятия горячих сухих воздушных ванн в сочетании с последующим чередующимся охлаждением под душем или в купели. И зачастую в современных гостиничных комплексах, СПА-отелях такие парильные обустраиваются дренчером или металлической трубой по периметру парильной комнаты с отверстиями с определенным шагом. Такая конструкция из трубы называется «перфорированный сухотруб», а дренчер — это ороситель с одним открытым выходным отверстием. Все эти конструкции предназначены для тушения пожара в парильной.

Как данные мероприятия объясняются с точки зрения пожарной безопасности и инженерного проектирования? На что опираться проектировщику систем пожарной безопасности, а также проектировщику водопровода?

Обратимся к нормативному регулированию, к действующим и некоторым недействующим на данный момент документам и письмам. Согласно СП 54.13330.2022 (пункт 6.2.3.16) сауны в многоквартирных домах могут быть заложены проектом и реализованы в жизни. «При проектировании саун в квартирах многоквартирных жилых зданий следует предусматривать объем парильни в пределах от 8 до 24 м3 и использовать:

— нагревательные приборы по ГОСТ IЕС 60335-2-53 с автоматическим отключением при достижении температуры 130 °С, а также через 8 ч непрерывной работы;

— оборудование вентиляционного канала противопожарным клапаном в соответствии с СП 60.13330, СП 7.13130;

— оборудование дренчером или сухотрубом, присоединенным за пределом парильни к внутреннему водопроводу.

Диаметр сухотруба определяют, исходя из интенсивности орошения не менее 0,06 л/с на 1 м2 поверхности стены, угла наклона струи воды к поверхности перегородок 20–30° и наличия в сухотрубе отверстий диаметром 3–5 мм, расположенных с шагом 150–200 мм».

В большинстве случаев проектировщики встречаются с вопросами проектирования бань сухого жара в общественных зданиях. Согласно СП 117.13330.2011 Общественные здания административного значения, пункт 6.3.9. требование подпункта 5, помещение парильной следует оборудовать по периметру дренчерным устройством (из перфорированных сухотрубов, присоединенных к внутреннему водопроводу) с управлением перед входом в парильную. Использование для обшивки парильной смолистой древесины не допускается.
К сожалению, он не действует, а нынешний СП 118.13330.2022 такого разъяснения не содержит.

Был также любопытный документ «Анализ пожарной опасности и путей ее снижения для финских бань и других помещений с повышенной начальной температурой».
Из него: «сухотруб из стальных водопроводных труб прокладывается по периметру парильного помещения сауны (под потолком). Диаметр труб следует принимать по расчету, принимая интенсивность орошения не менее 0,06 л/с на 1 м2 потолка и боковой поверхности стен, с отверстиями 3–5 мм и шагом 150–200 мм. С целью обеспечения эффективности орошения струи воды должны быть направлены под углом 20–30° под углом к орошаемой поверхности. Сухотруб подключается к общей системе внутреннего водоснабжения. Вода на орошение подается открытием вентиля, расположенного в доступном месте, за пределами помещения сауны в специальном ящике».

Также интересно мнение, что в здании, которое полностью оборудуется АУП (автоматические установки пожаротушения), парильная также является помещением, которое должно оборудоваться средствами автоматического пожаротушения. В таких случаях парильную некоторые проектировщики оборудуют спринклерами с установленной температурой колбы на 141 °С в своих проектах. Верно ли такое предположение или это очередная нормативная коллизия, которую пока нет времени устранить?

По моему мнению, это ловушка требований пожарной безопасности по автоматическим средствам пожаротушения и логического предположения, что должно быть не только тушение водой по площади помещения, а должно осуществляться именно тушение обшивки стен, потолка, что примечательно. Ради охлаждения водой обшивки и устраивается перфорированный трубопровод с отверстиями под углом к обшивке потолка и стен, а тушение самой площади пола уже вторично и имеет место быть при проектировании автоматического пожаротушения всего здания. Добавление дренчера над дверью входа и выхода из парильной является дополнительной мерой ограждения выхода из парильной от ядовитой смеси дыма и газов. Поэтому возникают большие сомнения в правильности выбранного решения с тушением только с помощью спринклеров, пусть и рассчитанные на высокую температуру. Возникают также вопросы о закипании воды в водозаполненной системе спринклерной сети под потолком парильной, об автоматическом срабатывании системы при том, что люди могут находиться внутри помещения.

Заключение

Проведя анализ различных документов и статей по данному вопросу, прихожу к выводу, что описание пожарной безопасности бань сухого жара требует уточнения и единообразия в действующей нормативной базе для общественных зданий.

Деревянная обшивка огнеопасна, и некоторые неточности проектирования и строительства, а также нарушения противопожарной защиты при эксплуатации могут приводить к ее возгоранию. Чтобы снизить вероятность возникновения пожаров, такие помещения, на мой взгляд, должны оборудоваться обязательно дренчером или сухотрубом, присоединенным к внутреннему водопроводу за пределами парильной. В систему перфорированных сухотрубов, предусмотренных по периметру парильного помещения, подавать чистую холодную воду питьевого качества, которая орошает деревянную обшивку, понижая ее температуру и смачивая деревянное покрытие. Диаметр сухотруба надо определять, исходя из интенсивности орошения не менее 0,06 л/с на 1 м2 поверхности стены, с углом наклона струи воды к поверхности перегородок 20–30° и наличия в сухотрубе отверстий диаметром 3–5 мм, расположенных с шагом 150–200 мм. Сухотруб применять из нержавеющей стали или иных коррозионностойких материалов.

Важно, что данная система не должна подключаться к автоматической системе пожаротушения, а подключаться к хозяйственно-питьевой системе холодного водопровода и имеет ручное управление. То есть воздухозаполненный трубопровод выходит из помещения парильной и опускается на удобное расстояние от пола, имеет отключающую арматуру — вентиль с удобной ручкой для быстрого открытия (рис. 3), и только после вентиля система водозаполненная и находится под давлением обычной системы ХВС (холодное водоснабжение) здания. Открывается вентиль быстро вручную после того, как люди будут исключены из помещения с возгоранием. Таким образом будут выполнены меры противопожарной защиты в парильных.

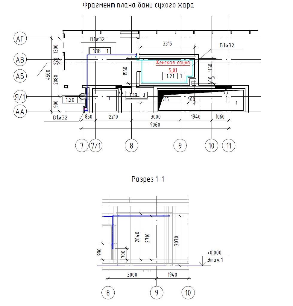
Рассмотрим пример одного из объектов общественного здания с баней сухого жара.

Как видно из чертежей, мы имеем небольшую женскую парильную (рис. 1).

Рис. 1. Фрагмент плана и разрез по помещению сауны

Проектные данные с чертежа мы применяем для расчета расхода и подбора диаметра перфорированного сухотруба.

Делая выводы, принимаем диаметр подающей трубы к парильной не менее Ду32 мм, так как скорость воды в таком трубопроводе будет менее 3 м/с, а вот при применении трубы менее Ду32 мм скорость будет выше 3 м/с, что нам не подходит.

Рис. 2. Изометрическая схема перфорированного сухотруба

Рис. 3. 3д-вид перфорированного сухотруба в парильной

Рис. 4. Узел перфорированного сухотруба

Рекомендации к дальнейшей работе с нормативными документами

С точки зрения проектировщика важно понимать не только сам факт, что нужно предусмотреть тушение помещения, а также:

  • описать смысл мероприятия устройства или дренчера над дверью парильной или перфорированного сухотруба по периметру обшивки, а возможно, и того и другого;
  • прояснить необходимость выведения патрубка для подключения пожарной техники на фасад здания, вблизи парильной, а также указать диаметр, количество патрубков и высоту их установки, в случае если система ХВС не работает;
  • закрепить нормативно интенсивность подачи воды и откуда данная вода приходит, какого качества и температуры;
  • закрепить ручной пуск подачи воды и каким образом он может реализоваться, при каких условиях;
  • разъяснить необходимость устройства автоматического пожаротушения в помещении бани сухого жара, не исключая описанной системы с сухотрубом;
  • рекомендовать применение для отделки парильного помещения лиственные породы древесины.

На данный момент тема пожаротушения бань сухого жара носит характер легенд, передающихся из уст в уста, что ранее делали сухотрубы, но чем это подтверждено, нормативно сейчас не совсем понятно. Есть разумные рекомендации вносить пожелания по сухотрубам в парильных в технические задания на проектирование, обсуждать со специалистами МЧС и дописывать в специальные технические условия по пожарной безопасности.

Литература

  1. СП 54.13330.2022. Свод правил. Здания жилые многоквартирные. СНиП 31-01-2003. Минстрой России. — Изд. официальное. — Москва, 2022.
  2. СП 117.13330.2011. Свод правил. Общественные здания административного значения. СНиП 31-05-2003. Минстрой России. — Изд. официальное. — Москва, 2011.
  3. СП 118.13330.2022. Свод правил. Общественные здания и сооружения. СНиП 31-06-2009. Минстрой России. — Изд. официальное. — Москва, 2022.
  4. Анализ пожарной опасности и путей ее снижения для финских бань и других помещений с повышенной начальной температурой. ГУ ГПС МВД РФ, 1993.
  5. Пожарная опасность камеры сухого жара в банях финского типа. Методические рекомендации. УПО ГУВД Мособлисполкома, 1987.
  6. СП 456.1311500.2020. Свод правил. Многофункциональные здания. Требования пожарной безопасности. — Изм. официальное. — Москва, 2020/